Amsterdam
Keizersgracht 517-A
Beschrijving:
Klassiek 3-kamer appartement van ca. 110 m2 met o.a. prachtig uitzicht op de Keizersgracht vanwege 3 grote ramen en de ligging op de beletage. Gelegen op een rustig stukje van de Keizersgracht, combineert deze woning de charme van het historische Amsterdam met het comfort van modern wonen. Hier woont u te midden van de bruisende stad, maar geniet u tegelijkertijd van een oase van rust en privacy. Het appartement is destijds met hoogwaardige materialen totaal gerenoveerd en kenmerkt zich door de ornamenten plafonds, visgraadparketvloer, de zeer complete indeling, het hoge afwerking niveau en de prettige ligging op een rustig stukje van de Keizersgracht. Dankzij de ligging op het Zuid/Westen geniet u van veel zonlicht, wat het appartement een warme en uitnodigende uitstraling geeft.
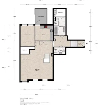
Indeling:
Voordat je je eigen voordeur bereikt in de centrale ruimte ben je in de “postkamer”.
Eigen entree; hal met garderobe. Badkamer v.v. (bubbel)bad, douche, wastafelmeubel met dubbele wastafel. Via deze badkamer is de ruimte voor de wasmachine, droger en CV installatie te bereiken. Aan de ander zijde van de hal is de gastenbadkamer met wc, douche en wastafel. De zitkamer is aan de voorzijde met 3 ramen. Vanuit de woonkamer heb je een prachtig uitzicht op de gracht doordat je op de Bel etage zit. De keuken met diverse inbouwapparatuur is middels glazendeuren gescheiden van de zitkamer. Via de keuken is de overdekte privé buitenruimte te bereiken; De masterbedroom met veel kastruimte is aan de achterzijde. In het souterrain is met ruime stahoogte (2.45m) en veel kastruimte de logeerkamer.
Ligging:
Het appartement is gelegen tussen de Leidsestraat en de Vijzelgracht. De Keizersgracht is omringd door een scala aan restaurants, cafe’s en bars. Van gezellige koffiehuizen en trendy lunchplekken tot verfijnde eetgelegenheden met keukens uit alle hoeken van de wereld. De nabijgelegen Utrechtsestraat staat bekend om zijn culinaire diversiteit en kwaliteit.
Voor cultuur en ontspanning is er genoeg aanbod in de nabije omgeving. Het Rijksmuseum, het Van Gogh museum en het Stedelijk museum zijn op loopafstand.
Vereniging van Eigenaren:
De VVE bestaat uit 35 woningen. De servicekosten van deze appartementen bedragen ca. €275,- per maand. Er is een MJOP aanwezig. Komend jaar worden de achter en zijgevels geschilderd.
Professioneel beheerd door VvE Beheer Amsterdam.
Afspraak maken?
Maak nu eenvoudig een afspraak met Huisman Makelaardij. Ons team van ervaren makelaars staat voor je klaar om je te helpen bij de aan- of verkoop van jouw woning. Neem vandaag nog contact met ons op om een afspraak te maken en ontdek wat wij voor jou kunnen betekenen.
Snel contactKoop en verkoop, huur en verhuur met vertrouwen
Bij Huisman Makelaardij kunt u rekenen op professioneel advies en deskundige begeleiding bij het kopen, verkopen, huren of verhuren van uw woning. Ons ervaren team van makelaars helpt u bij elke stap van het proces en zorgt voor een effectieve marketingstrategie voor uw woning. Wij staan voor transparantie en betrouwbaarheid, en bieden u een eerlijke prijs en gedegen onderbouwd advies op basis van onze jarenlange ervaring in de vastgoedmarkt. Neem contact met ons op en ontdek wat wij voor u kunnen betekenen.























